- Accueil
- Vente immobilier professionnel
- Var
- Montauroux
- RARE,MONTAUROUX 83440 Local à usage artisanal et entrepôt à vendre
Référence : 953
Partager
RARE,MONTAUROUX 83440 Local à usage artisanal et entrepôt à vendre
Description de l'offre
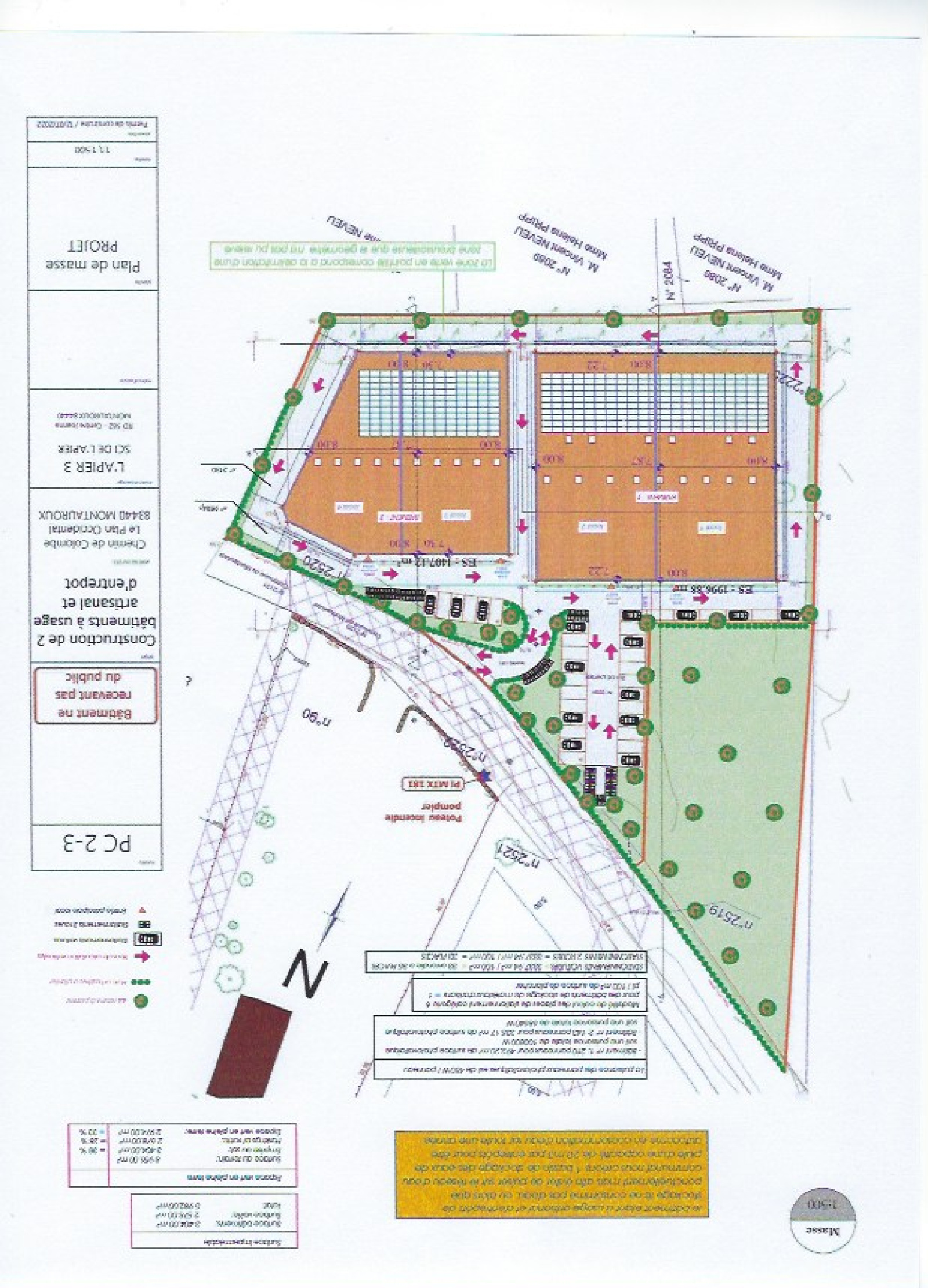
L'Agence M IMMOPRO, spécialisée dans l'Immobilier d'Entreprise, vous propose à la vente en VEFA, sur la Commune de Montauroux 83440, un local à usage artisanal et entrepôt d'une surface au sol de 150 m2. Le bâtiment d'une surface au sol d'environ 2000 m2 sur un nterrain d'environ 9000 m2 dont ce local est une division, sera construit en béton précontraint avec une toiture isolée et aura une hauteur de 8,5 m au faitage. Le local sera livré brut de béton avec fluides en attente, compteur electrique triphasé 380 V, dalle hélicoptère, accès par porte sectionnelle et porte piètonne. Voies de circulation en enrobé, espaces verts, places de parking. Accès gros porteurs. Livraison fin 2026. AUTRES SURFACES DISPONIBLES PRIX DE VENTE 277 500 € HT FAI. - Contact. Jean Michel 07 72 01 91 47 - Email jeanmichel@m-immopro.fr PLUS DE BIENS SUR NOTRE SITE M IMMOPRO Les informations sur les risques auxquels ce bien est exposé sont disponibles sur le site Géorisques : www.georisques.gouv.fr
Descriptif du bien
- Type de transac : Local d'activite
- Code postal : 83440
- Surface habitable (m²) : 150 m²
- Superficie (m²) : 150
- Prix de vente HT honoraires inclus : 277 500 €
- type d'activité : - Divers
La ville de Montauroux (83440)
Nous Contacter
Afficher le téléphone 07 52 33 12 85Les informations recueillies sur ce formulaire sont enregistrées dans un fichier informatisé par La Boite Immo agissant comme Sous-traitant du traitement pour la gestion de la clientèle/prospects de l'Agence / du Réseau qui reste Responsable du Traitement de vos Données personnelles.
La base légale du traitement repose sur l'intérêt légitime de l'Agence / du Réseau.
Elles sont conservées jusqu'à demande de suppression et sont destinées à l'Agence / au Réseau.
Conformément à la loi « informatique et libertés », vous disposez des droits d’accès, de rectification, d’effacement, d’opposition, de limitation et de portabilité de vos données. Vous pouvez retirer votre consentement à tout moment en contactant directement l’Agence / Le Réseau.
Consultez le site https://cnil.fr/fr pour plus d’informations sur vos droits.
Si vous estimez, après avoir contacté l'Agence / le Réseau, que vos droits « Informatique et Libertés » ne sont pas respectés, vous pouvez adresser une réclamation à la CNIL.
Nous vous informons de l’existence de la liste d'opposition au démarchage téléphonique « Bloctel », sur laquelle vous pouvez vous inscrire ici : https://www.bloctel.gouv.fr
Dans le cadre de la protection des Données personnelles, nous vous invitons à ne pas inscrire de Données sensibles dans le champ de saisie libre.
Ce site est protégé par reCAPTCHA, les Politiques de Confidentialité et les Conditions d'Utilisation de Google s'appliquent.

être rappelé