- Accueil
- Vente immobilier professionnel
- Var
- Montauroux
- LOCAL ENTREPOT de 250 m2 à vendre à Montauroux 83440
Référence : 689
Partager
LOCAL ENTREPOT de 250 m2 à vendre à Montauroux 83440
Description de l'offre
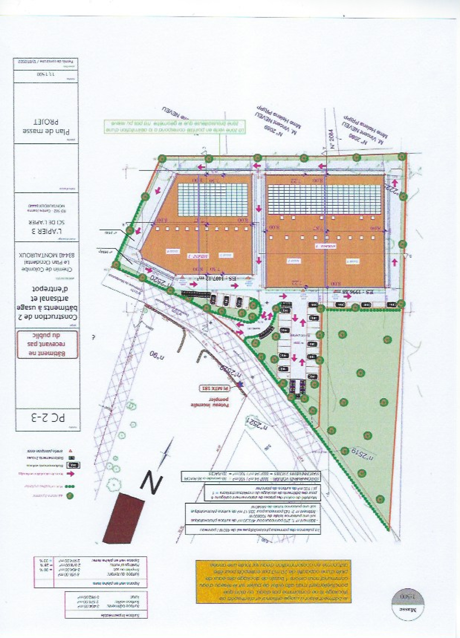
L'Agtence M IMMOPRO, spécialisée dans les locaux professionnels, vous propose à la vente en VEFA, sur la communne de MONTAUROUX 83440, un local à usage artisanal ou entrepôt de 250 m2. Le bâtiment d'une surface au sol de 2000 m2 dans lequel est intégré ce local, sera construit sur un terrain de 5088 m2 en béton precontraint avec une toiture isolée et une hauteur de 8,5 m au faitage. Ce local sera livré brut de béton avec une dalle helicoptere, un compteur electrique, arrivée et départ eau, porte industrielle electrique et porte piétonne. Accès gros porteurs et voies de circulation en enrobé. Places de parking Livraison 3eme trimestre 2026 PRIX DE VENTE 462 500 € HT FAI. - Contact Jean Michel 07 72 01 91 47 - Email jeanmichel@m-immopro.fr PLUS DE BIENS SUR NOTRE SITE M IMMOPRO Les informations sur les risques auxquels ce bien est exposé sont disponibles sur le site Géorisques :www.georisques.gouv.fr
Descriptif du bien
- Type de transac : Local d'activite
- Code postal : 83440
- Surface habitable (m²) : 250 m²
- Superficie (m²) : 250
- Prix de vente HT honoraires inclus : 426 500 €
- Chiffre d'affaires :
- EBE : 0 : 0 : 0 :
- type d'activité : - Divers
La ville de Montauroux (83440)
Nous Contacter
Afficher le téléphone 07 52 33 12 85Les informations recueillies sur ce formulaire sont enregistrées dans un fichier informatisé par La Boite Immo agissant comme Sous-traitant du traitement pour la gestion de la clientèle/prospects de l'Agence / du Réseau qui reste Responsable du Traitement de vos Données personnelles.
La base légale du traitement repose sur l’intérêt légitime de l'Agence / du Réseau.
Elles sont conservées jusqu'à demande de suppression et sont destinées à l'Agence / au Réseau.
Conformément à la loi « informatique et libertés », vous pouvez exercer votre droit d'accès aux données vous concernant et les faire rectifier en contactant l'Agence / le Réseau.
Si vous estimez, après avoir contacté l'Agence / le Réseau, que vos droits « Informatique et Libertés » ne sont pas respectés, vous pouvez adresser une réclamation à la CNIL.
Nous vous informons de l’existence de la liste d'opposition au démarchage téléphonique « Bloctel », sur laquelle vous pouvez vous inscrire ici : https://www.bloctel.gouv.fr
Dans le cadre de la protection des Données personnelles, nous vous invitons à ne pas inscrire de Données sensibles dans le champ de saisie libre
Ce site est protégé par reCAPTCHA, les Politiques de Confidentialité et les Conditions d'Utilisation de Google s'appliquent.

être rappelé