- Accueil
- Location immobilier professionnel
- Var
- Draguignan
- LOCAL COMMERCIAL 200M2 DRAGUIGNAN EMPLACEMENT N1 AXE PASSANT
Référence : 740
Partager
LOCAL COMMERCIAL 200M2 DRAGUIGNAN EMPLACEMENT N1 AXE PASSANT
Description de l'offre
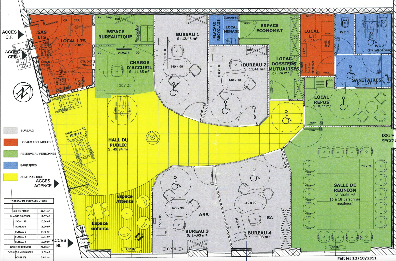
M-IMMOPRO, spécialiste en immobilier professionnel : transaction, gestion et expertise, vous propose à la location ce local commercial idéalement situé sur un axe très fréquenté, bénéficiant d’un emplacement N°1 offrant une excellente visibilité. Voisinnage très actif. Caractéristiques du bien : Surface totale : environ 200 m² Normes ERP et PMR Aménagement fonctionnel: 4 bureaux indépendants 1 bureau avec hall d’accueil 1 espace attente 1 salle de réunion de 16 à 18 places Sanitaires et local repos Local archives Stationnement sécurisé: 3 places de parking privatives à l’arrière du bâtiment Espace clôturé et fermé par un portail Conditions locatives : Loyer : 2 600 € HT/mois Provision sur charges : 110 € HT/mois Provision sur taxe foncière : 75 € HT/mois Dépôt de garantie : 7 800 € (3 mois de loyer HT) Honoraires agence : 6 240 € HT (7 488 € TTC) Contact pour visite et renseignements :Françoise Caranta – 06 29 35 22 39 Retrouvez plus d’opportunités sur notre site M-IMMOPRO.FR Conformément aux obligations légales, les informations sur les risques auxquels ce bien est exposé sont disponibles sur le site Géorisques : www.georisques.gouv.fr
Descriptif du bien
- Type de transac : Local commercial
- Code postal : 83300
- Surface habitable (m²) : 200 m²
- Superficie (m²) : 200
- Année de construction : 2011
- Vitrine : oui
- Copropriété : NON
- Loyer : 2 600 € / mois
- Honoraires charge locataire : 7 488 €
- Dont état des lieux : Non renseigné
- Dépot de garantie : 7 800 €
- Charges locatives (provision donnant lieu à régularisation annuelle) : 110 €
- Bail : commercial
- type d'activité : - Divers
La ville de Draguignan (83300)
Nous Contacter
Afficher le téléphone 07 52 33 12 85Les informations recueillies sur ce formulaire sont enregistrées dans un fichier informatisé par La Boite Immo agissant comme Sous-traitant du traitement pour la gestion de la clientèle/prospects de l'Agence / du Réseau qui reste Responsable du Traitement de vos Données personnelles.
La base légale du traitement repose sur l'intérêt légitime de l'Agence / du Réseau.
Elles sont conservées jusqu'à demande de suppression et sont destinées à l'Agence / au Réseau.
Conformément à la loi « informatique et libertés », vous disposez des droits d’accès, de rectification, d’effacement, d’opposition, de limitation et de portabilité de vos données. Vous pouvez retirer votre consentement à tout moment en contactant directement l’Agence / Le Réseau.
Consultez le site https://cnil.fr/fr pour plus d’informations sur vos droits.
Si vous estimez, après avoir contacté l'Agence / le Réseau, que vos droits « Informatique et Libertés » ne sont pas respectés, vous pouvez adresser une réclamation à la CNIL.
Nous vous informons de l’existence de la liste d'opposition au démarchage téléphonique « Bloctel », sur laquelle vous pouvez vous inscrire ici : https://www.bloctel.gouv.fr
Dans le cadre de la protection des Données personnelles, nous vous invitons à ne pas inscrire de Données sensibles dans le champ de saisie libre.
Ce site est protégé par reCAPTCHA, les Politiques de Confidentialité et les Conditions d'Utilisation de Google s'appliquent.

être rappelé