- Accueil
- Location immobilier professionnel
- Alpes maritimes
- St jeannet
- RARE ENTREPÔT AVEC QUAI 3370 m2 sur 4456 m2 de terrain
Référence : 966
Partager
RARE ENTREPÔT AVEC QUAI 3370 m2 sur 4456 m2 de terrain
Description de l'offre
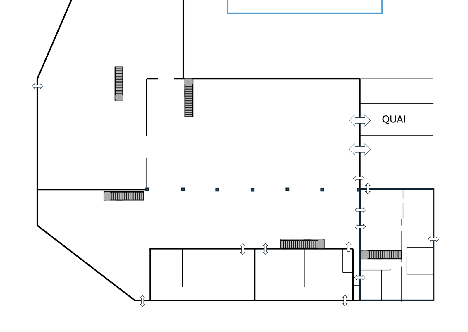
L’agence M-IMMOPRO, spécialisée en immobilier professionnel sur les Alpes-Maritimes, vous propose à la location un entrepôt indépendant idéalement situé entre Saint-Laurent-du-Var et Carros, bénéficiant d’un accès aisé aux axes principaux et adapté aux activités nécessitant de grands volumes de stockage et de la logistique. Caractéristiques principales : Surface totale : 3370 m² sur un terrain de 4456 m2 Entrepôt au sol : 2030 m², dont :• 1800 m² environ avec chauffage gaz avec une hauteur sous plafond de 9 m, équipé d’un quai de déchargement Deux portes sectionnelles grand format pour accès poids lourds 970 m² en mezzanine, avec 500 m2 de bureaux climatisés, avec salle de réunion et plusieurs bureaux indépendants Terrain extérieur d’environ 2 500 m², entièrement goudronné, doté de deux portails poids lourds permettant la manœuvre de semi-remorques 2 bornes recharge pour voiture électrique Conditions financières : Loyer trimestriel 84 000 € HT Charges : aucune Taxe foncière : 15791 € HT / an Dépôt de garantie : 3 mois de loyer HT, soit 84 000 € Honoraires d’agence : 15 % HT du loyer annuel HT, soit 50 400 € HT (60480 € TTC) Disponibilité : 1 Février 2026 Ce bien rare sur le secteur combine de très beaux volumes, un accès poids lourds complet et des bureaux de qualité, idéal pour une activité logistique, artisanale ou industrielle. Contact commercial :Philippe MIRALLES- 07 52 33 12 85- philippe@m-immopro.fr Retrouvez d’autres opportunités sur : www.m-immopro.fr Mentions légales obligatoires : Agence M IMMOPRO Les Sorbiers, 67 Boulevard Carnot 06400 CannesImmatriculée au RCS de Cannes le 19/09/2018 SIREN 842 463 846 SIRET 842 463 846 00019Carte professionnelle n° CPI 0605 2018 000 037 142, délivrée par la CCI Nice Côte d’Azur le 24/10/2024Mentions : Transaction sur immeubles et fonds de commerce Non-détention de fonds Absence de garantie financièreAssurance RCP : GENERALI, police n° AR381160TVA intracommunautaire : FR 96 842 463 846Acte établi par Philippe MIRALLES, Gérant, pour le compte de l’établissement Informations sur les risques : Les informations sur les risques auxquels ce bien est exposé sont disponibles sur le site :www.georisques.gouv.fr
Descriptif du bien
- Type de transac : Entrepot
- Code postal : 06640
- Surface habitable (m²) : 3 370 m²
- Nombre de niveaux : 1
- Superficie (m²) : 3370
- Loyer : 28 000 € / mois
- Honoraires charge locataire : 60 480 €
- Dont état des lieux : Non renseigné
- Dépot de garantie : 84 000 €
- Bail : commercial
- Chiffre d'affaires :
- EBE : 0 : 0 : 0 :
- type d'activité : - Divers
La ville de Saint-Jeannet (06640)
Nous Contacter
Afficher le téléphone 07 52 33 12 85Les informations recueillies sur ce formulaire sont enregistrées dans un fichier informatisé par La Boite Immo agissant comme Sous-traitant du traitement pour la gestion de la clientèle/prospects de l'Agence / du Réseau qui reste Responsable du Traitement de vos Données personnelles.
La base légale du traitement repose sur l’intérêt légitime de l'Agence / du Réseau.
Elles sont conservées jusqu'à demande de suppression et sont destinées à l'Agence / au Réseau.
Conformément à la loi « informatique et libertés », vous pouvez exercer votre droit d'accès aux données vous concernant et les faire rectifier en contactant l'Agence / le Réseau.
Si vous estimez, après avoir contacté l'Agence / le Réseau, que vos droits « Informatique et Libertés » ne sont pas respectés, vous pouvez adresser une réclamation à la CNIL.
Nous vous informons de l’existence de la liste d'opposition au démarchage téléphonique « Bloctel », sur laquelle vous pouvez vous inscrire ici : https://www.bloctel.gouv.fr
Dans le cadre de la protection des Données personnelles, nous vous invitons à ne pas inscrire de Données sensibles dans le champ de saisie libre
Ce site est protégé par reCAPTCHA, les Politiques de Confidentialité et les Conditions d'Utilisation de Google s'appliquent.

être rappelé